PBCF propeller caps have the effect of reducing the negative pressure area and flow velocity behind the propeller, thereby increasing the propeller efficiency by 1-2%. At the same time, reducing the drag on the rudder and the suction behind the stern. The total effect can reduce fuel consumption by 2-5%. Moreover, it also has the effect of reducing rudder cavitation and propeller noise.
MARITECHS designed PBCF propeller caps by parametric modeling method combined with CFD calculation. Usually a PBCF design, we will conduct calculations with up to hundreds of options to find the most optimal one. With this PBCF design approach, a comprehensive assessment of the influence of design parameters on propeller performance is ensured. From there, the optimal cases will not be missed.





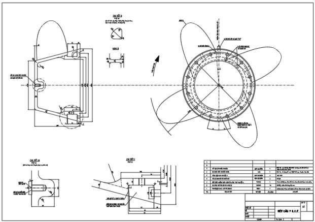
Production drawing


Optimizing PBCF by parametric model and CFD
Video about self-propulsion simulation of cargo vessel 4500 DWT with PBCF

