Mũ chân vịt có cánh PBCF có tác dụng giảm vùng áp suất âm và vận tốc dòng chảy phía sau chân vịt từ đó tăng hiệu suất chân vịt từ 1-2%. Đồng thời giảm lực cản tác dụng lên bánh lái và lực hút phía sau đuôi tàu. Tổng tác dụng có thể giảm lượng tiêu hao nhiên liệu từ 2-5%. Hơn nữa nó còn có tác dụng giảm xâm thực bánh lái và tiếng ồn do chân vịt tạo ra.
MARITECHS thiết kế mũ chân vịt có cánh PBCF bằng phương pháp mô hình tham số kết hợp với tính toán CFD. Thông thường một thiết kế PBCF, chúng tôi sẽ tiến hành tính toán với số lượng lên đến hàng trăm phương án để tìm ra phương án tối ưu nhất. Với phương pháp thiết kế PBCF này, sẽ đảm bảo đánh giá được toàn diện ảnh hưởng của các thông số thiết kế đối với hiệu suất của chân vịt. Từ đó sẽ không bỏ xót các trường hợp tối ưu.

Các phương án tính toán PBCF

Tổng hợp kết quả tính toán PBCF


So sánh đường dòng sau chân vịt giữa chân vịt có lắp mũ PBCF và chân vịt bình thường

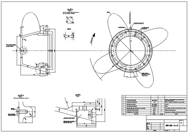
Bản vẽ chế tạo PBCF


Hình ảnh sản phẩm PBCF sau khi sản xuất và sau khi lắp đặt trên tàu
Tính toán tối ưu PBCF bằng mô hình tham số kết hợp CFD
Video thử đẩy tàu hàng 4500 DWT với chân vịt có PBCF

